当前位置 : 首页> 曼谷-翁通郎区 Wang Thonglang>翁通郎区 | Lat Phrao — Ratchada区域 家庭办公室出租 2栋 300平米/栋 每栋110,000泰铢/月(可注册公司)

【曼谷-翁通郎区 】翁通郎区 | Lat Phrao — Ratchada区域 家庭办公室出租 2栋 300平米/栋 每栋110,000泰铢/月(可注册公司)

最近更新: 前天14:38 更新   |    房源编号:FY0025627    |     浏览人次:43
店鋪
称呼:泰国好房网
公司注册号: 0105563066648
所属公司: 泰国好房网
公司地址: 30th Floor,160/753 ITF Silom Palace,Silom Rd,Bangrak,Bangkok,Thailand.
经纪人房源
0658833344
留言查詢

楼盘概况

  • 月租:24110 元 /㎡
  • 约泰铢: 110000  THB
  • 房型面积: 300  平方
  • BTS轻轨 : 不适用
  • MRT地铁 : LatPhrao(BL15)
  • 房间 : 单间
  • 客厅 : 1厅
  • 卫浴 : 1卫浴
  • 楼层 : 3楼
  • 装修状况 : 精装修
  • 朝向 :
  • 押金 : 押二付一
  • ALR机场专线 : 不适用

小区信息

详细描述

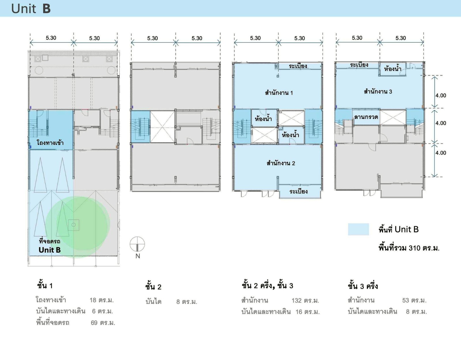
翁通郎区 | Lat Phrao — Ratchada区域 家庭办公室出租 TO-2026-02-08

可出租 2 栋

■ 面积:
每个栋约 300 平方米(具体面积以附图为准)

■ 停车条件:
可停放至少 4 辆车

■ 系统与设施:
– 三相电系统
– 预留电动车(EV)充电接口
– 空间开阔,便于家具配置,适合办公使用
– 周边绿化良好,环境安静舒适
– 租赁期内提供免费空调清洗与维护
– 刚完成整体翻新

■ 公司注册:
可用于公司注册(如需注册公司,请先说明并提供业务类型以供审核)

■ 租金:
110,000 泰铢 / 月 / 栋
水电费按实际使用量支付

租赁条件:
– 最低租期:3 年
– 预付租金:1 个月
– 押金:2 个月

位置:

– 距 MRT Lat Phrao 站约 1.9 公里
– 距 BTS Ratchayothin 站约 2.5 公里
– 距 BTS Phahonyothin 24 站约 2.5 公里


你可能有兴趣的楼盘

周边配套

房价走势

暂无数据
免责声明: 本页面仅供参考和借鉴,一切以售楼处公布为准
联 系 人:
联系电话:
沪ICP备18013953号

邮箱:ithaihome@gmail.com

小程序 欢迎使用小程序