邻铃区 | Ratchada — Rama 9 办公室出租 UO-2026-04-43
详细信息:
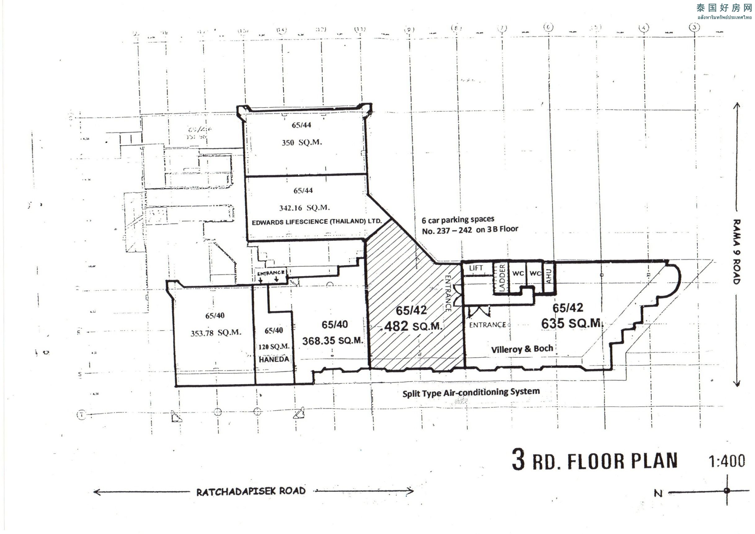
建筑高度:30层
面积:482平方米(位于3楼)
租金:
600泰铢/平方米/月(不含增值税 VAT)
(以上租金不包含物业管理费及水电等公共事业费用)
物业管理费:
46泰铢/平方米/月
(由承租人直接支付给物业管理处,于次月5日前缴纳)
租赁条件:
租期:3年(可续约)
费用说明:
押金:3个月租金(可退还)
预付租金及管理费:1个月
电表押金:30,000 – 200,000泰铢/个(可退还)
停车贴纸押金:500泰铢/张(可退还)
停车印章押金:500泰铢/个(可退还)









